Week 0 is ‘Scaffolding Week’ – sounds glamorous, eh? Not until you get your house enveloped in scaffolding do you realise the effort and time it takes to do. We are currently in Scaffolding Week, as we are putting on a second floor, the roof is going and we need to top the house in a ‘tin hat’ to keep out the elements. My goodness it’s big – we suddenly realise how tall the house will be once its finished which is inline with other normal houses in the street but makes our bungalow look tiny.
Anyway, I digress. This post is about the initial changes we considered making to our plans due to the initial feedback from Paul our Building Control man. Building Control are the guys who ensure your build is safe structurally and in the event of a fire. They are the ones who sign it off on completion and let the council know everything is OK. Building Control can be assigned by the council, or you can have your own and many builders have a business they use.
We are using Paul from Thames Building Control and he came highly recommended. He certainly got to work quickly…
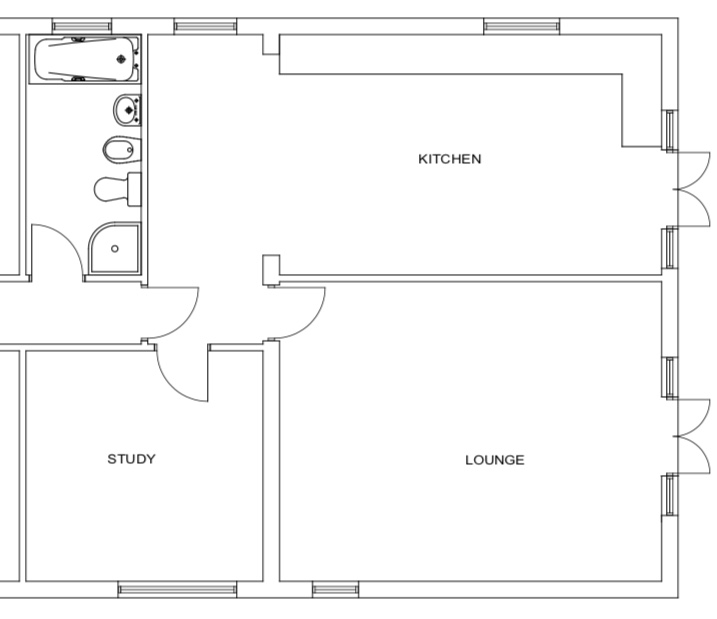
As part of the build, we are also reconfiguring the downstairs space. We currently have the layout at the rear of our house as shown below. The ‘study’ is the old living room which is currently mine and my wife’s bedroom.

Our initial plan was to add the stairs next to the bathroom and create another external door in the window space at the top (so we have an independent entrance from the in-laws). We were then going to knock down the study wall and both walls in the lounge to have a completely open plan living space. We would build a wall back to separate the stairway and entrance from the kitchen.

Paul’s first feedback was that this was fine, but we would require windows with an escape in each bedroom, plus fire doors upstairs, as the stairs were open plan and there was no ‘firewall’ or blocking space to prevent the spread of fire. We had always planned to have fully-opening windows anyway but I didn’t want fire doors – I thought they were heavy, expensive and have to be sprung-hinged to remain shut. The joys of modern open-an living!
This plan also used a lot of steels, 5 in total including a ‘goal post’ arrangement replacing the wall between study and lounge. We also needed 3 sets of footings dug in key areas, 1.2m square by 1m deep. It added £3,750 to our costs and a lot more disruption.

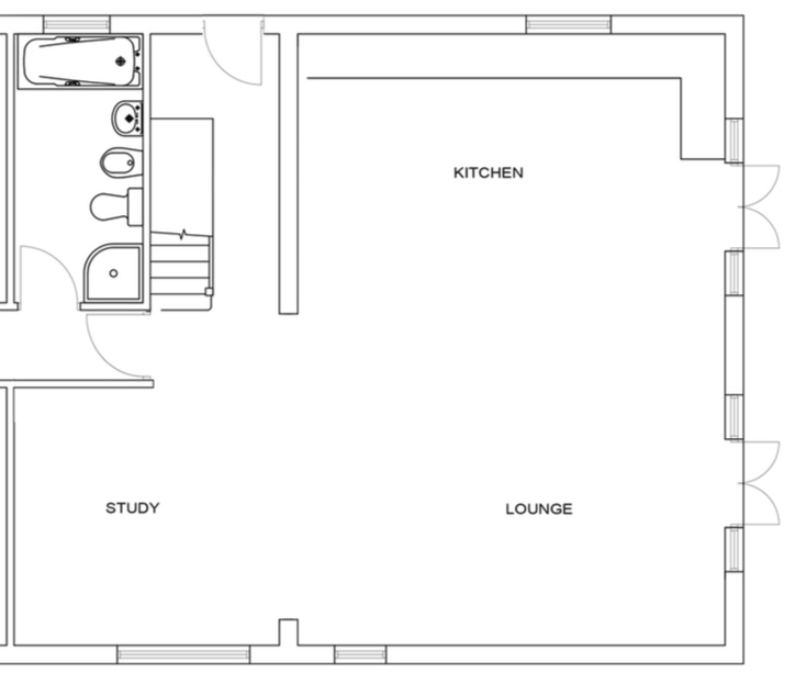
I had an idea which actually made a lot of sense from a privacy and ‘flow’ perspective, by creating a lobby around the stairs. Effectively replacing the false wall currently in place with a solid block wall between the study and stairwell, adding in a door to the lounge and making this a self-contained and more fire-compliant arrangement. This was the updated plan:

It turns out that actually my assumptions were incorrect (and I didn’t realise how much the missus was now a fan of minimum walls downstairs). Fire doors are indeed heavy, as my builder mentioned, but aside from strengthened hinges, they are a relatively simple and cheap upgrade from standard doors (around £30-£40 per door if you’re having oak laminate). There is no self-closing mechanism required, unless the door in on an internal garage.
The updated drawings from the structural engineer suggested we’d still need the goal-post steels arrangement and the three footings dug, so actually the extra cost would be incurred anyway.
So we are sticking with our original plan, but it has opened our eyes to the needs to consider everything with regards fire safety and how modern, open-plan living can seriously affect your compliance. Make sure you allow for Building Control to change your plans – it will be for good reason.
Please check out the rest of our Big Build blog here.
If you’d like to ask any questions, please contact me below: