I thought I’d do a post about the planning process we went through for our build as we had one rejection with an appeal also rejected and then a successful approval for a plan I didn’t think would get through. I will explain!
We bought our house knowing that a few years ago, it had been extended to the rear so that the back third of the house was new. This new space had floor joists already built in with a view to ‘going up’. It would have been a great space for a master bedroom and en-suite but we needed at least two extra bedrooms – and when my older son Ieuan asked if he could move in with us for college, 2 bedrooms became 3!
We engaged the services of the architect who did the plans for the original extension, just for ease, although in hindsight I don’t see this actually provided any real benefit. We created a plan that gave us a master suite plus two bedrooms, focused at the rear of the house to use the joists that were already in place. The roof pitch was just high enough (1.9m) to mean this didn’t need increasing and so we could create flat-roof dormers.


Unfortunately, this was our downfall. The architect did point out that our council (Spelthorne Borough Council) didn’t really like flat roof dormers but not only would it be difficult to see these from the road, due to the length of the house, other flat roof dormers had been approved locally too.
However our plan was rejected as we didn’t meet the council’s own guidelines on extensions and dormers, specifically that it used flat-roofed dormers, was overbearing on the neighbourhood and asymmetrical. They also stated reasons which were completely incorrect, such as impact on parking (we have a driveway with space for potentially 5 cars) and overlooking our surrounding areas. One side of our house looks onto allotments and apparently they felt we were overlooking these even though every other house round us is a two-story home overlooking the allotments!
The decision took exactly 2 months to come in and I appealed immediately. Appeals are free to do but you need to submit good grounds and there is a huge backlog so it took 3 months to process. My appeal was based on there being no difference between our ‘overlooking’ and those of houses round us, plus the comparison with other recently approved extensions which included some flat roofs and a number very sizeable and overbearing.
This appeal was rejected, stating more of the same that had come from the council.
So I read the council’s guidelines on extensions and developments from cover to cover. In hindsight, I should have done this myself first rather than rely on advice from the architect. It was clear that in order to bring a ‘common look’ to developments, the council had adopted a style which included that any dormers should have a pitched roof, symmetry from the road should not be disrupted and if anything, extensions should look like they were always part of the house.
I jokingly said to my wife, “we should go completely the opposite way and turn it into a two story house with a new roof and take the pitch height up to that of our neighbours”. I felt this was a solution to the council’s requirements but one which was such a bigger build that if it was approved, it would make a mockery of the previous rejection on the grounds of being overbearing.
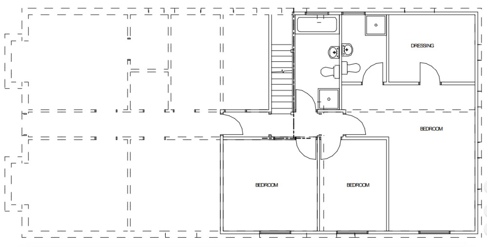
So I asked our architect to draw up a mirror plan upstairs of the floorplan downstairs, on the ‘old’ house footprint as the number of rooms and sizing was perfect (plus we got an additional airing cupboard and study!) Stick a new pitched roof on the whole lot and away we go. We actually submitted it as ‘Proposed roof alterations that would include raising the ridge height to the front to convert the existing bungalow to house with first floor front extension’ as it sounded smaller than it was.

To my absolute astonishment, it sailed through to approval with the same case officer who had rejected us before. I genuinely couldn’t believe that aside from the flat roof nature of our previous build, most of the rejection reasons (overbearing, overlooking etc.) seemed to no longer apply. I do think it was because our surrounding neighbours all had (different types of) two-story housing and that’s all we were doing, creating another 2 story house. Once done, it would look like it was always like that.
We then had the prospect of finding significantly more money for the build than we though we’d need, but as I’ve said in my ‘Selecting a Builder‘ post, the builder we selected (George Best) stuck with us as our plans changed and helped us work through all costs to achieve what we wanted as efficiently as possible.
The moral? Read everything your council publishes with regards extensions and building guidance. Don’t think you can ‘get round it’ through appeal. Just work with an architect who really understands the council’s desires and is creative enough to give you something the council will endorse. And if you do overlook open land, don’t assume it’s OK to build up and overlook more of it!
Please check out the rest of our Big Build blog here.
If you’d like to ask any questions, please contact me below:
