You may notice this isn’t a blog about cooking! We are about to embark on a very large home extension so thought I’d do a blog about our experience in case anyone else is mad enough to try it.
We bought our four bedroom bungalow in Staines in the summer of 2016. It’s a multi-generational home with my in-laws, my wife and I, a 17 year old and a 4 year old, all in residence.
Built in the early 1920s, it is a long rectangular bungalow with a high apex to a pitched roof. It looks a bit like an old chapel! We bought the property specifically to amend short term to provide two living spaces and long term to extend into the roof.
Currently the in-laws have a living room, bedroom with en-suite and small kitchen at the front of the house, we have a bedroom for Jack (the 4 year old), then our bedroom is in the dining room and my 17 year old Ieuan is in our garden lodge! We have a living room and kitchen at the rear.
We always intended to move into the roof space and finally achieved planing permission on the second attempt (will post about that process separately). Our aim is to provide a 2-bedroom ‘flat’ at the front of the house for the in-laws, a downstairs utility/shower room, an open plan lounge/kitchen at the rear and 3 bedrooms plus bathrooms and study upstairs.
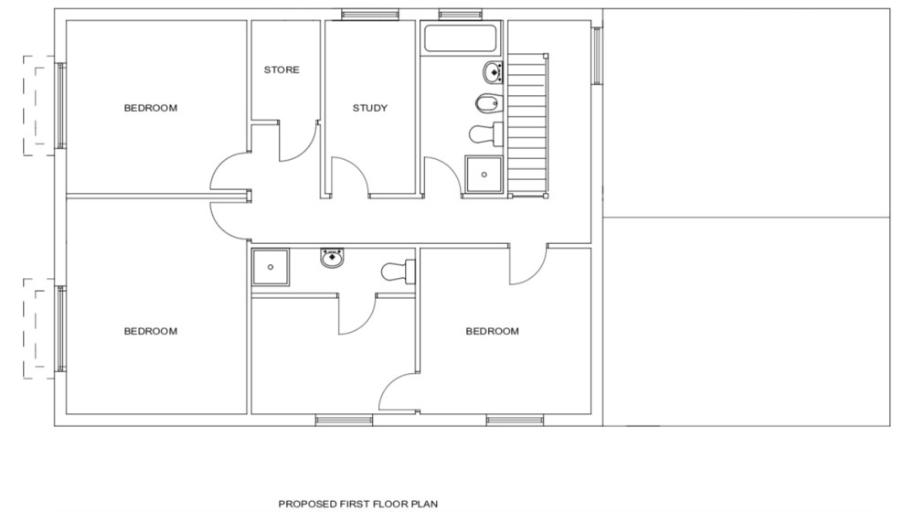
The has required us effectively building a second floor on the bungalow with pitched roof on top. This second floor is shown below. It mainly mirrors the floor plan downstairs, on the ‘old’ footprint of the house (it was extended to the rear a decade ago).

Our build starts on Wednesday 10th October, when our scaffolding is erected. We have challenged the builder to get it done by Christmas but are prepared for an overrun into the new year. I will post regular to give you updates about how it’s going and some key decisions we had to make or issues to cover come.
Wish us luck!!!
Please check out the rest of our Big Build blog here.
If you’d like to ask any questions, please contact me below:
